Welcome to 12 Crowell Road--a beautifully maintained and updated home set on a .40-acre lot in one of Sandwich's most picturesque neighborhoods. This inviting 3-bedroom, 2-bath property offers seasonal waterviews from the home, and as you come and go you're treated to beautiful, sweeping views of Cape Cod Bay.The first floor features hardwood floors, a wood-burning fireplace, an updated kitchen, full bath with laundry, and two comfortable bedrooms. Upstairs, a charming third bedroom with its own full bath creates an ideal private suite for guests. Outside, enjoy a level backyard, an attached one-car garage, and a large basement offering excellent storage or future potential.The heating system, windows, central air, generator, flooring, bathrooms, and kitchen have all been updated within the past eight years, making this a truly carefree home.Perfectly situated within a mile of Sandwich's historic Main Street, you'll have easy access to its restaurants, boutique shops, the library, and the Sandwich Glass Museum--making this an exceptional blend of comfort, convenience, and Cape Cod charm.

Listing Tools

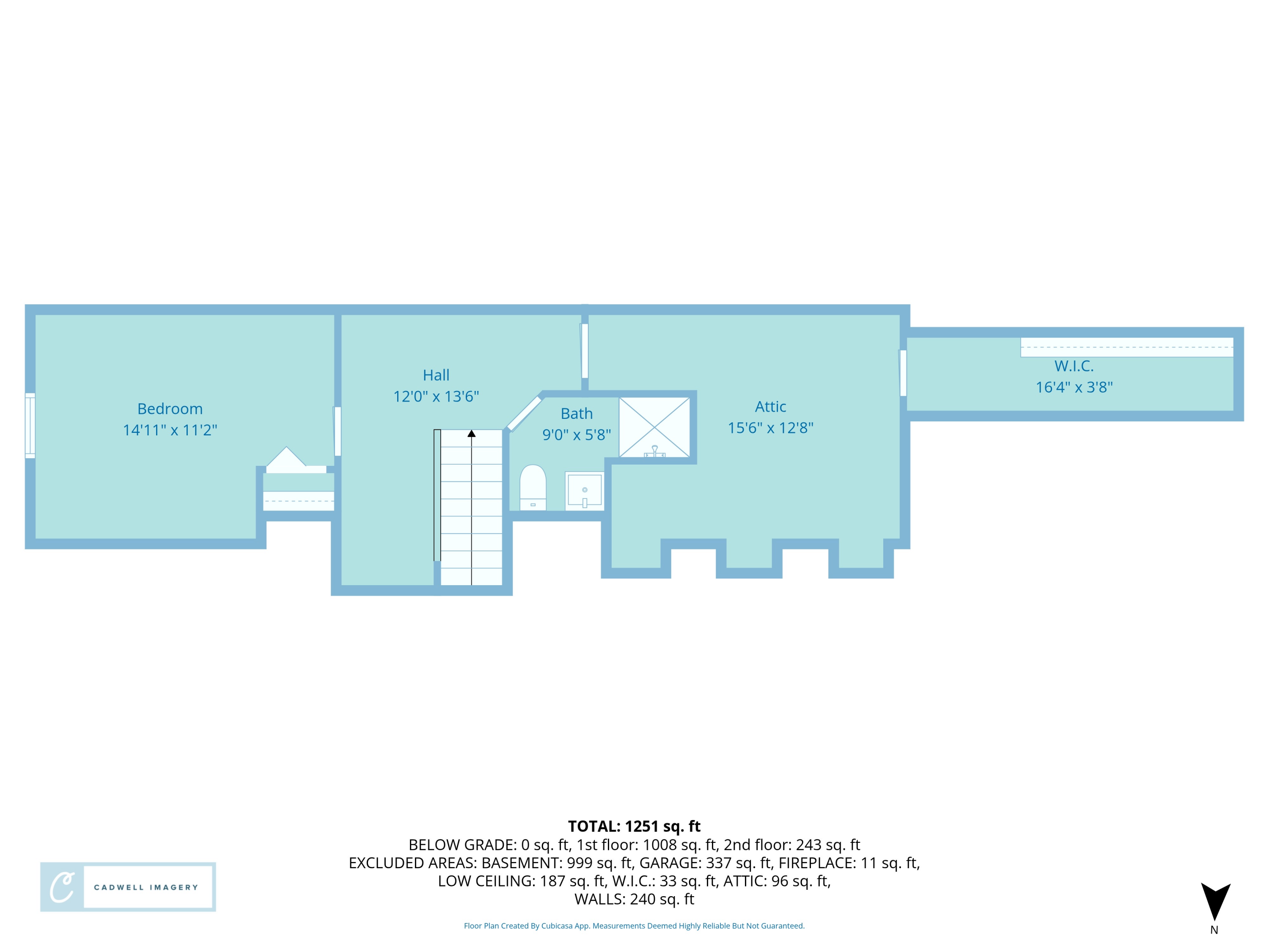
Property Details of 12 Crowell Road

Property Details

Interior Features

Exterior Features

Utilities and Appliances

Map Location

Listed by Kenny - Heisler Team of Kinlin Grover Compass

broker reciprocity The data relating to real estate for sale on this site comes from the Broker Reciprocity (BR) of the Cape Cod & Islands Multiple Listing Service, Inc. Summary or thumbnail real estate listings held by brokerage firms other than Seaport Village Realty are marked with the BR Logo and detailed information about them includes the name of the listing broker. Neither the listing broker nor Seaport Village Realty shall be responsible for any typographical errors, misinformation, or misprints and shall be held totally harmless.

This site was last updated December 12, 2025 7:21 PM EST. All properties are subject to prior sale, changes, or withdrawal.

Seaport Village Realty has chosen to display only certain towns and/or types or styles of properties. This site may not show all listings that are available through the Cape Cod & Islands Multiple Listing Service, Inc.

Hi there! How can we help you?

Contact us using the form below or give us a call.

Send Us A Message:

I agree to receive marketing and customer service calls and text messages from Seaport Village Realty. To opt out, you can reply 'stop' at any time or click the unsubscribe link in the emails. Consent is not a condition of purchase. Msg/data rates may apply. Msg frequency varies. Privacy Policy.

Do not fill in this field:

This site is protected by reCAPTCHA and the Google Privacy Policy and Terms of Service apply.

Hi there! How can we help you?

Contact us using the form below or give us a call.

Send Us A Message:

Do not fill in this field:

This site is protected by reCAPTCHA and the Google Privacy Policy and Terms of Service apply.

Hi there! How can we help you?

Contact us using the form below or give us a call.

Send Us A Message:

Do not fill in this field:

This site is protected by reCAPTCHA and the Google Privacy Policy and Terms of Service apply.

Do not fill in this field:

This site is protected by reCAPTCHA and the Google Privacy Policy and Terms of Service apply.

Do not fill in this field:

This site is protected by reCAPTCHA and the Google Privacy Policy and Terms of Service apply.

Do not fill in this field:

This site is protected by reCAPTCHA and the Google Privacy Policy and Terms of Service apply.

$

Do not fill in this field:

This site is protected by reCAPTCHA and the Google Privacy Policy and Terms of Service apply.